Vinhomes Green City
Vinhomes Green City là khu đô thị mới được Vinhomes phát triển tại thị trấn Hậu Nghĩa, huyện Đức Hòa, tỉnh Long An. Với quy mô lên đến 197ha, Vinhomes Hậu Nghĩa được quy hoạch bài bản, bao gồm biệt thự đơn lập, biệt thự song lập, nhà phố, shophouse và chung cư cao tầng.
Chủ đầu tư Vinhomes đã chú trọng đến việc tạo dựng một không gian sống xanh, hài hòa với thiên nhiên, đồng thời tích hợp các tiện ích nội khu cao cấp như trung tâm thương mại, trường học, bệnh viện và công viên cây xanh. Dự án không chỉ đáp ứng nhu cầu an cư mà còn mở ra cơ hội đầu tư hấp dẫn cho khách hàng.
Quy mô
Số tầng thấp
Mật độ cây xanh
Thời gian hoàn thành
Hiện tại dự án Vin Hậu Nghĩa đã hoàn tất các thủ tục pháp lý và đang tiến hành giai đoạn san lấp mặt bằng, làm hạ tầng nội khu. Dưới đây là một số hình ảnh thực tế tiến độ thi công tại công trường dự án để quý khách tham khảo:
Vị trí Vinhomes Green City ở tại đường Quốc lộ N2, thị trấn Hậu Nghĩa, huyện Đức Hòa, tỉnh Long An – ngay trung tâm hành chính huyện và tiếp giáp trực tiếp với huyện Củ Chi, TP.HCM.
Với kinh đã từng bán các dự án vùng ven TP Hồ Chí Minh như Đồng Nai, Bình Dương thì tôi đánh giá vị trí dự án đẹp và rất tiềm năng.
Từ kinh nghiệm hơn 15 năm trong lĩnh vực bất động sản đã triển khai nhiều dự án vùng ven, tôi khẳng định: Vin Green City sở hữu một vị trí đẹp và tiềm năng.
Phía Bắc, giáp Củ Chi – cửa ngõ Tây Bắc Sài Gòn đang được ưu tiên phát triển thành thành phố mới, nơi có dự án hơn 1.000ha của Vin chuẩn bị triển khai.
Phía Nam, tiếp cận toàn bộ khu vực Đồng bằng Sông Cửu Long thông qua hệ thống cao tốc và quốc lộ trục dọc.
Phía Đông, liên kết nhanh đến trung tâm TP.HCM chỉ trong 30 phút qua trục N2 – Quốc lộ 22 – Tỉnh lộ 8.
Phía Tây, kết nối trực tiếp đến các khu công nghiệp lớn, các đô thị vệ tinh Long An như Bến Lức, Đức Huệ.
Vị trí này không chỉ là cửa ngõ giao thương, mà còn là điểm chốt chiến lược trong quy hoạch “06 trục động lực” phát triển đô thị của tỉnh Long An.
Hạ tầng giao thông luôn là yếu tố tăng giá chính cho bất kỳ dự án bất động sản nào và Vin Long An hội tụ đầy đủ các hạ tầng quan trọng của khu vực phía Nam và Long An như:
Vành Đai 3 và Vành Đai 4: Tạo nên trục liên kết siêu đô thị giữa Long An – TP.HCM – Đồng Nai – Bình Dương.
Cao tốc TP.HCM – Trung Lương, Bến Lức – Long Thành: Đưa Vinhome Long An vào “bản đồ kết nối quốc gia”.
Quốc lộ 50B, 62 – ĐT 827E: Gia tăng khả năng tiếp cận liên vùng, tạo điều kiện phát triển thương mại – dịch vụ.
Khi hạ tầng đồng bộ, giá trị bất động sản sẽ không chỉ tăng – mà sẽ bật vọt.
Từ sau 2018, tôi đã chứng kiến làn sóng dân cư, doanh nghiệp và vốn đầu tư rời khỏi trung tâm TP.HCM, đổ về các đô thị vệ tinh có tiềm năng tăng giá, không gian sống tốt, và pháp lý minh bạch.
– Không gian sống sinh thái giữa lòng đô thị quy hoạch bài bản.
– Giá khởi điểm mềm hơn khu Đông, khu Nam TP.HCM, nhưng biên độ tăng giá lại rộng.
– Nằm trong tâm phát triển công nghiệp – đô thị – thương mại của Long An, nơi tập trung các KCN lớn như Đức Hòa 1 – 3, Xuyên Á, Tân Đức,…
Dự án Vinhome Green City thực sự nổi bật nhờ hệ thống tiện ích toàn diện và đẳng cấp. Dự án này không chỉ cung cấp nơi an cư lý tưởng mà còn kiến tạo một môi trường sống chất lượng cao từ giáo dục, y tế, mua sắm, giải trí và nghỉ dưỡng.
Những tiện ích trên không chỉ nâng cao chất lượng cuộc sống mà còn tạo nên cộng đồng cư dân văn minh, hiện đại. Việc tích hợp đầy đủ các dịch vụ thiết yếu ngay trong khu đô thị giúp cư dân tiết kiệm thời gian, tận hưởng cuộc sống tiện nghi và an toàn.
Một số tiện ích nổi bật giúp Vin Hậu Nghĩa trở thành trung tâm mới phía Tây Sài Gòn.
Hồ trung tâm The Green Lake 8ha
Hồ điều hòa rộng lớn kết hợp với công viên xanh mát tạo không gian thư giãn, thể dục thể thao và các hoạt động ngoài trời cho cư dân.
Vincom Mega Mall 4ha
Đây là điểm đến mua sắm và giải trí hàng đầu, quy tụ nhiều thương hiệu nổi tiếng trong nước và quốc tế, đáp ứng nhu cầu mua sắm, ẩm thực và giải trí đa dạng của cư dân.
Bệnh viện đa khoa quốc tế Vinmec
Với trang thiết bị hiện đại và đội ngũ y bác sĩ giàu kinh nghiệm, Vinmec cung cấp dịch vụ chăm sóc sức khỏe chất lượng cao, đảm bảo sự an tâm cho cư dân.
Giá bán Vinhomes Long An hiện chưa được chủ đầu tư công bố chính thức, tôi sẽ cập nhật giá bán chi tiết từng loại hình sớm nhất cho quý khách khi Vinhomes công bố giá.
Diện tích: 60m2, 75m2
Giá bán: 4.8 TỶ/CĂN
Thanh toán đợt đầu chỉ 456 TRIỆU
Diện tích: 90m2
Giá bán: 7.8 TỶ/CĂN
Thanh toán đợt đầu chỉ 740 TRIỆU
Diện tích: Đang cập nhật
Giá bán: Đang cập nhật
Diện tích: Đang cập nhật
Giá bán: Đang cập nhật
Diện tích: Đang cập nhật
Giá bán: Đang cập nhật
Áp dụng cho dòng sản phẩm theo tiến độ
Áp dụng cho dòng sản phẩm giãn xây 2 năm
Ưu đãi booking sớm lên đến 200 triệu
Ưu đãi lên đến 1.3% cho khách hàng thân thiết
Ưu đãi tặng thêm vào ngày mở bán
Khu đô thị Vinhomes Long An cung cấp đầy đủ các loại hình nhà ở từ nhà phố, shophouse, liền kề, biệt thự đến căn hộ, đáp ứng mọi nhu cầu của khách hàng.
Dưới đây tôi sẽ chia sẻ thông tin chi tiết từng loại hình sản phẩm để quý khách tham khảo:
Nhà phố luôn là dòng sản phẩm không chỉ đóng vai trò chủ lực về số lượng mà còn là trục xương sống trong việc hình thành một cộng đồng cư dân sầm uất, năng động, văn minh.
Với vị trí đắc địa trong lõi đô thị, kết nối trực tiếp với các tuyến phố thương mại, công viên trung tâm và chuỗi tiện ích nội khu, nhà phố thiết kế sự tiện lợi, gắn kết và giá trị khai thác linh hoạt.
Shophouse được quy hoạch tập trung tại các tuyến phố thương mại chủ lực, liền kề các trục tiện ích lớn như Vincom Mega Mall, công viên trung tâm, Vinschool, mang đến lợi thế vượt trội về lưu lượng giao thông và khả năng khai thác kinh doanh ngay từ giai đoạn đầu.
Biệt thự song lập được quy hoạch liền kề với các lõi xanh, công viên nội khu và mặt nước điều hòa tạo nên môi trường sống trong lành, yên tĩnh, nhưng không tách biệt. Đây chính là lựa chọn hoàn hảo cho những gia đình thành đạt đang tìm kiếm một cuộc sống cân bằng giữa thiên nhiên, tiện ích và vị thế.
Biệt thự đơn lập là dòng sản phẩm dành riêng cho giới thượng lưu với không gian sống lý tưởng và giá trị bền vững theo thời gian.
Tại Vinhome Green City, dòng biệt thự đơn lập được quy hoạch tại vị trí đẹp nhất – phía Đông Bắc khu đô thị, nơi yên tĩnh, riêng tư nhưng vẫn kết nối mạch chảy tiện ích chỉ trong vài bước chân.
Trong suốt 10 năm bán dự án Vinhomes như Grand Park, Ocean Park hay mới nhất là Wonder City, tôi nhận thấy phân khúc căn hộ đang ngày càng trở thành lựa chọn tối ưu cho nhóm cư dân trẻ, gia đình trẻ và người có thu nhập ổn định. Không chỉ vì giá thành dễ tiếp cận, mà quan trọng hơn là một phong cách sống văn minh – tiện nghi – kết nối đang được hình thành rõ nét trong cộng đồng cư dân chung cư Vinhomes.
Tại Vinhomes Hậu Nghĩa, dòng căn hộ không chỉ góp phần hoàn chỉnh bức tranh đô thị thông minh, mà còn là mảnh ghép quan trọng trong việc mở rộng cơ hội sở hữu nhà cho số đông người dân khu vực Long An – TP.HCM với mức tài chính hợp lý, nhưng không đánh đổi chất lượng sống.
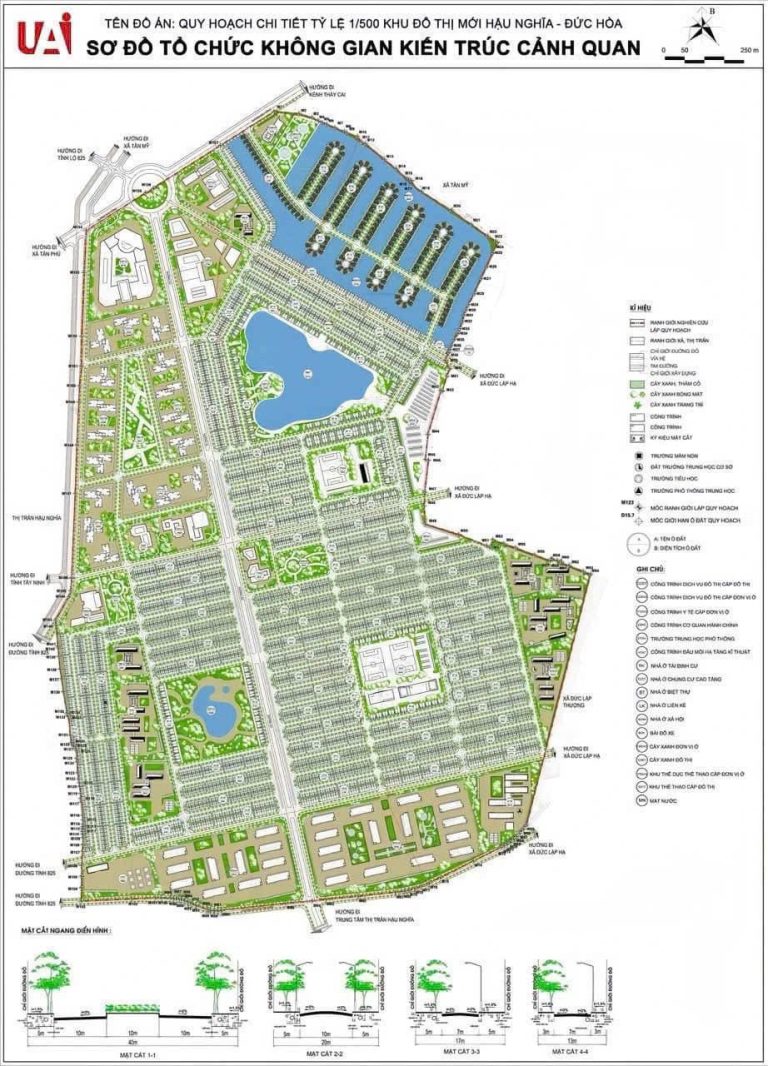
Khu đô thị Vinhomes Green City được quy hoạch trên quỹ đất 197ha theo mô hình đô thị hiện đại với hệ thống sản phẩm đa dạng, đáp ứng nhu cầu an cư và đầu tư của nhiều nhóm khách hàng.
Về cơ cấu sản phẩm, khu biệt thự bao gồm 517 căn, mật độ xây dựng từ 65 – 80%. Trong đó, biệt thự đơn lập cao 4 tầng, được bố trí tại khu vực phía Đông Bắc khu đô thị, có diện tích trung bình từ 200 – 250m2. Biệt thự song lập được quy hoạch liền kề với lõi xanh nội khu, diện tích trung bình từ 120 – 150m2, cao 5 tầng.
Khu nhà liền kề gồm 4.510 căn, cao 5 tầng, mật độ xây dựng từ 80 – 95%. Bên cạnh đó, dự án còn có 491 căn tái định cư, cao 5 tầng, mật độ xây dựng tối đa 90%.

Là phân khu thấp tầng đầu tiên được giới thiệu ra thị trường, The Forest không chỉ mở màn cho chuỗi phát triển quy mô tại Vinhomes Green City, mà còn sở hữu vị trí đắt giá bậc nhất – ngay mặt tiền đường 3/2 và liền kề hai tuyến phố thương mại biểu tượng: Phố Nhật Bản và Phố Trung Hoa.
Thông tin cơ bản về phân khu The Forest:
Là phân khu hiếm hoi sở hữu nhiều công viên nội khu nhất toàn khu đô thị, The Sunrise được quy hoạch như một “ốc đảo sinh thái” giữa nhịp sống đô thị hiện đại. Bao quanh bởi chuỗi tiện ích độc đáo như Solari Park, Pop Art Park, Aurora Park, phân khu mang đến trải nghiệm sống tràn ngập cây xanh, ánh sáng và năng lượng tích cực.
Nằm đối diện khu phố Nhật – Trung sầm uất, The Sunrise không chỉ lý tưởng để an cư cho gia đình trẻ và cư dân yêu thiên nhiên, mà còn mở ra cơ hội đầu tư thương mại bền vững nhờ vị trí chiến lược kết nối khu dịch vụ – giải trí trọng điểm.
Thông tin cơ bản về phân khu The Sunrise:
Vinhome Green City là một trong những dự án hiếm hoi hội tụ đủ 3 yếu tố vàng để trở thành điểm đến đầu tư chiến lược giai đoạn 2025–2026.
Hiện tại, mặt bằng giá nhà phố tại Đồng Nai và Bình Dương đang dao động từ 6 tỷ/căn. Trong khi đó, Long An – dù sở hữu vị trí kết nối TP.HCM gần hơn – hiện vẫn đang là vùng trũng về giá.
Tại thời điểm này, giá nhà phố tại khu vực này chỉ từ 4 tỷ/căn – thấp hơn đáng kể so với mặt bằng 6 tỷ ở các khu vực vùng ven như Biên Hòa, Thủ Dầu Một. Đây chính là điểm mua lý tưởng cho nhà đầu tư có tầm nhìn trung – dài hạn.
Sau nhiều năm ưu tiên cho Đồng Nai và Bình Dương, giai đoạn 2025–2026, dòng vốn đầu tư công bắt đầu dịch chuyển mạnh về Long An. Tôi đặc biệt lưu ý đến các trục hạ tầng như Vành đai 3, Vành đai 4, cao tốc Bến Lức – Long Thành và đường tỉnh 827E – đây không chỉ là công trình kết nối mà là đòn bẩy tăng trưởng toàn khu vực.
Đáng chú ý, Vành đai 3 đã được Thủ tướng Phạm Minh Chính trực tiếp kiểm tra và chỉ đạo đẩy nhanh tiến độ đưa vào hoạt động trong năm 2026. Với kinh nghiệm bán hàng tại các khu vực hưởng lợi trực tiếp từ vành đai như Ocean Park 2, 3 ngoài Bắc, tôi hiểu rõ sức bật về giá mà hạ tầng mang lại khi đi vào giai đoạn vận hành.
Thủ tướng Phạm Minh Chính tới kiểm tra yêu cầu đầy nhanh tiên độ
Nút giao đường Vành Đai 3 đoạn qua cao tốc Bến Lức – Long Thành đang dần hình thành
Nếu từng tiếc nuối vì không đầu tư sớm vào Ocean Park tại Gia Lâm hay Ocean Park 2, 3 tại Hưng Yên, thì dự án Vinhome Long An chính là cơ hội làm lại một cách bài bản. Quy mô, lộ trình phát triển và chuỗi đại đô thị Vinhomes tiếp theo đã được xác lập – tương tự như những gì đã xảy ra tại miền Bắc.
Theo thông tin tôi có được từ hệ thống đại lý chiến lược, sau Hậu Nghĩa, Vinhomes sẽ tiếp tục triển khai thêm 2 đại đô thị mới tại khu Tây Nam TP.HCM với tổng quy mô gần 2.000ha. Điều này không chỉ khẳng định tầm nhìn dài hạn của chủ đầu tư mà còn mở ra chu kỳ tăng giá theo từng giai đoạn, tương tự mô hình tăng giá X2 – X3 đã xảy ra tại Ocean Park trước đây.
Với dự án Vin Green City, hơn 70% diện tích được dành cho cây xanh, mặt nước và hạ tầng công cộng – điều rất hiếm gặp ở các khu đô thị vùng ven TP.HCM. Chính sự đầu tư này tạo nên một không gian sống trong lành, thông thoáng, ít bê tông – nơi trẻ em có thể lớn lên giữa công viên, hồ điều hòa; người lớn có thể đi bộ, tập thể dục mỗi sáng và người cao tuổi có thể tận hưởng không khí tĩnh tại mà không cần rời khỏi khuôn viên nhà mình. Đó là thứ mà khách hàng mua để ở đang ngày càng tìm kiếm – và ngày càng khó tìm thấy.
Rất nhiều khách hàng chuyển từ nhà phố trung tâm TP.HCM ra các đại đô thị của Vinhomes không phải vì giá rẻ – mà vì tiện ích. Vincom Mega Mall, Vinschool, Vinmec, công viên trung tâm, khu vui chơi trẻ em, khu thể thao… tất cả đều nằm trọn trong một khuôn viên khép kín. Chỉ cần vài bước chân là có thể tiếp cận được mọi nhu cầu thiết yếu hằng ngày. Hãy tưởng tượng mỗi sáng, cha mẹ đưa con đến trường Vinschool trong khu, sau đó đi làm hoặc làm việc tại nhà, tối về cùng gia đình đi dạo, mua sắm tại Vincom, kiểm tra sức khỏe tại Vinmec nếu cần – tất cả đều gói gọn trong bán kính chưa đến 1km.
Từ dự án, cư dân chỉ mất 20 – 30 phút di chuyển về trung tâm TP. HCM thông qua các trục như QL N2, Tỉnh lộ 8 hoặc cao tốc TP.HCM – Trung Lương. Nghĩa là cư dân vẫn có thể đi làm tại TP.HCM mỗi ngày, nhưng khi trở về nhà là trở về với một không gian yên bình, thoáng mát và đầy đủ tiện ích như một khu nghỉ dưỡng giữa lòng đô thị. Đây là điểm mà những người từng ở Vinhomes Ocean Park hay Grand Park đều cảm nhận rất rõ – sống tại đại đô thị mang lại nhiều hơn một mái nhà, đó là sự thư thái cho cả thể chất lẫn tinh thần.
Dự án Vin Long An đã hoàn tất đầy đủ các thủ tục pháp lý quan trọng ngay từ giai đoạn chuẩn bị, đảm bảo nền tảng pháp lý vững chắc trước khi triển khai thi công. Cụ thể như sau:
Ngày 28/02/2020, dự án đã được phê duyệt quy hoạch chi tiết 1/500 theo Quyết định số 2329/QĐ-UBND, với tổng diện tích 197,2ha.
Ngày 25/04/2023, Thủ tướng Chính phủ đã ký Quyết định số 438/QĐ-TTg, chấp thuận chủ trương đầu tư cho toàn bộ dự án.
Ngày 20/10/2023, UBND tỉnh Long An đã ban hành Quyết định số 9763/QĐ-UBND, chấp thuận Công ty Cổ phần Phát triển Thành Phố Xanh – công ty con của Vinhomes – là nhà đầu tư chính thức thực hiện toàn bộ dự án, với thời hạn hoàn thành không quá 6 năm kể từ ngày quyết định có hiệu lực.

Hiện tại, dự án đã bắt đầu san lấp mặt bằng, làm hạ tầng giao thông nội khu.
Giá bán hiện tại chưa được chủ đầu tư công bố, chũng tôi sẽ cập nhật khi được công bố.
Xin chào quý khách em là
Em chuyên cập nhật thông tin, tư vấn và báo giá sản phẩm căn hộ Masteri Centre Point, VINHOMES GREEN CITY, VINHOMES GRAND PARK, Masteri The rivus, MASTERI CENTRE POINT, CARAWORLD CAM RANH, SUN VŨNG TÀU BLANCA
Đăng ký tư vấn nhanh tại đây: Mua bán – Chuyển nhượng – Cho thuê BĐS Vinhomes
Nhận thông tin mới nhất và ưu đãi đặc biệt